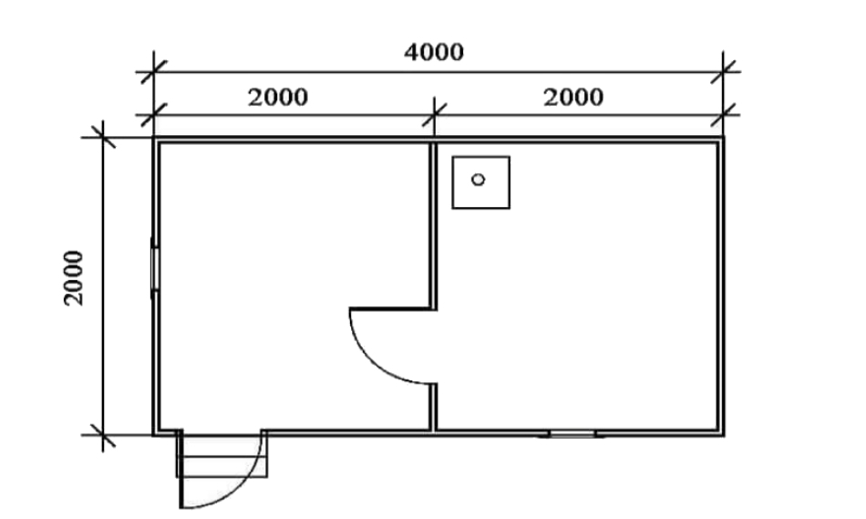
Баня для дачи Б-01
ЦЕНА: 15670 бел. руб.
Техническая характеристика :
- Обвязка:
Брус 100х50мм
- Наружные стены:
Каркасные из бруса 50х100, утеплитель 100 мм, паро- и ветрозащита, обшивка снаружи и внутри имитацией бруса.
- Пол:
Обвязочный ряд: брус 100×100, лаги – доска 50×100 с шагом 70 сантиметров, черновой пол: обрезная доска толщиной 22-25 мм, чистовой пол: строганная шпунтованная доска 27мм.
- Внутренние перегородки:
Каркасно-щитовые, обшитые вагонкой хвойных пород древесины, со стороны парной осиновая вагонка
- Окна:
Деревянные окна с двойным остеклением и фурнитурой в каждом отделении размерами: 0,6х0,6м= 1шт., 0,5х0,5м=1 шт
- Двери:
Каркасные обшитые вагонкой, имитацией бруса
- Внутренняя отделка:
Раздевалка и моечное отделение: потолок, перегородки обшиваются имитацией бруса хвойных пород древесины. На стыки углов стен, потолка и пола прибивается плинтус хвойных пород. Парное отделение: потолок, перегородки и стены обшиваются ольховой вагонкой. Полки выполнены из шлифованной ольховой доски камерной сушки. Под вагонкой по периметру прокладывается фольгированная мембрана с эффектом энергосбережения. На стыки углов стен, потолка и пола прибивается плинтус.
- Наружная отделка:
Стены обшиты имитацией бруса, двери окна свесы крыши углы строения обшиты доской хвойных пород древесины
- Утепление:
ISOVER: утепление стен 100 мм. утепление потолка 100 мм. Паро-гидроизоляция: защитные пленки: мембраны Изоспан Д, Изоспан А, Изоспан В .
- Крыша:
Одно или двускатная, конек 0,15-0,20 м
- Кровля:
Мягкая черепица оптима
- Высота потолка:
2.05м.
- Электрика:
В комнате отдыха и помывочном отделении светильники с матовым остеклением, в парном отделении светильник с керамическим основанием. В комнате отдыха: двойная розетка, выключатель при входе, автомат-выключатель 16А.
- В парном отделении:
Двухъярусные полки из ольхи.
- Обработка бани:
Каркас с основанием — антисептический раствор. Снаружи составом МАВ Профитекс в любые цвета по палитре.
В стоимость не входит:
Фундамент:
Столбчатый из бетонных блоков (Бетонные блоки 30х30х15 см — 9 штук )
Доставка оговаривается дополнительно.
Котел- по согласованию с заказчиком.






























